Convenient and Built to Last

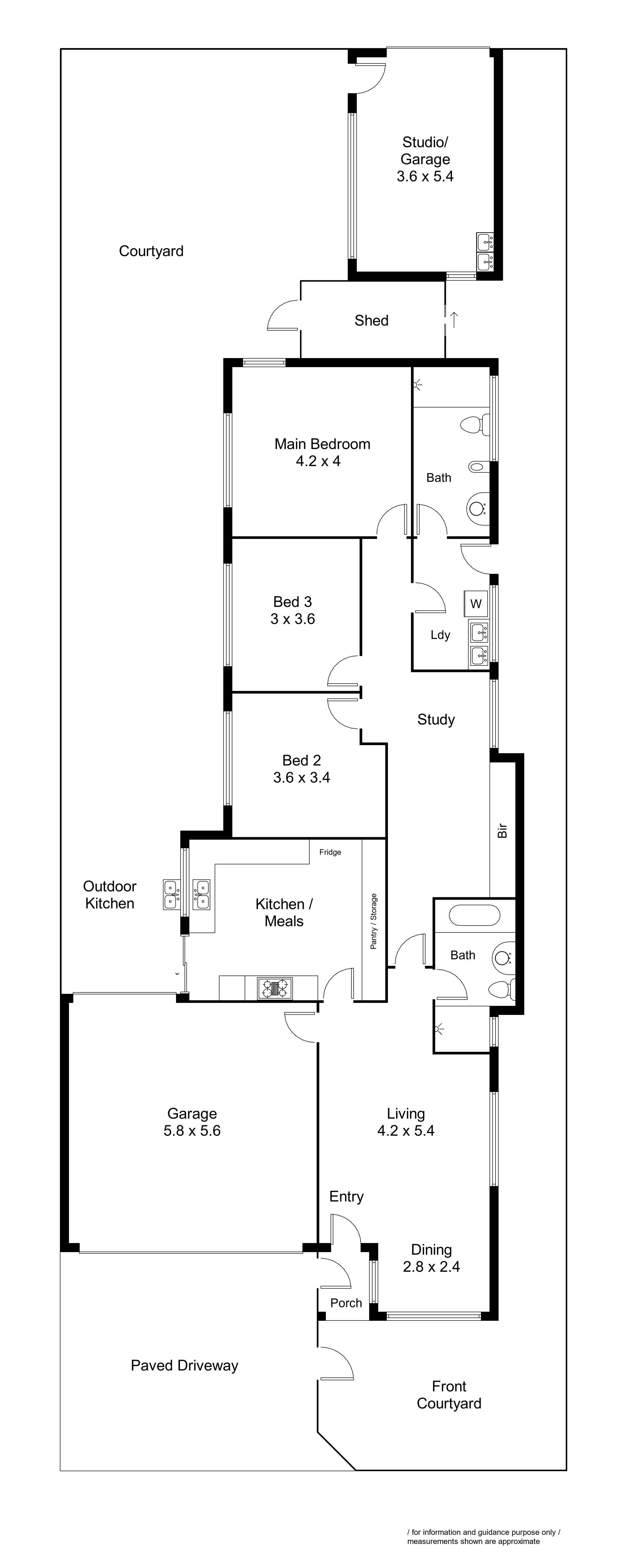
Located in the Hilton Heights side of the shopping district, this 3 bedroom, 2 bathroom home (210sqm), is situated on a 443sqm rectangular block with front and rear vehicle access.  There is secure parking with 2 lock up garages (double in the front & single in the rear lane) with automatic rollers doors and honed aggregate concrete floors.

The home was designed for low maintenance  and constructed in 2009 of high-quality double face brick with all walls and ceilings freshly painted.

Energy efficient with solar power, solar hot water, heat pump air conditioning, natural cooling, passive heating and Miele appliances.

Designed for universal access with a medical alert that automatically opens front door to allow unhindered ambulance access so that a disabled person can live here on her own.

Live in assured safety with a high-quality iron work front fence, lockable gate and security porch, electric roller shutters with centralised control and security screens.

Designed for outdoor living with a face brick fence, aggregate concrete floors, lots of fruit trees and an outdoor kitchen complete with hot/cold sink, gas bayonet and a fully automatic awning for sun or rain protection.

If you are  looking for a well-presented home that is ready to move in, then this property is a must see.

Email agent for more information.

This property is sold unfurnished except for large rack & huge enclosed vertical store in the front garage.

Virtual furniture and fittings for illustration purposes only.

3 2 6
Address 44 Ethelwyn Street, Hilton
Price SOLD for $906,000
Property Type Residential
Property ID 1361
Category House

Agent Details